Full design services

Trasformiamo le tue idee in realtà, creando ambienti funzionali ed esteticamente accattivanti. Che si tratti di una casa, un ufficio o un locale commerciale, curiamo ogni dettaglio per proporre un progetto personalizzato e in linea con le tue esigenze. Tutti i progetti sono subito cantierabili.

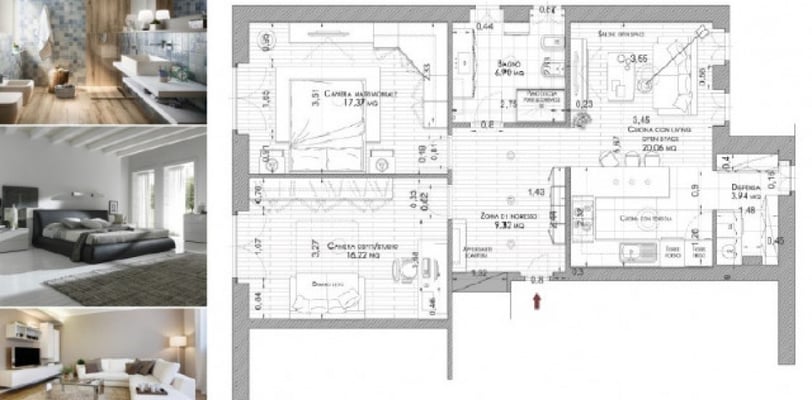
The design process

Il processo di progettazione d'interni inizia con l'analisi della planimetria quotata e un briefing telematico con il cliente per definire le esigenze funzionali e lo stile desiderato. Il progettista, considerando illuminazione ed ergonomia, sviluppa un concept design che traduce le richieste in soluzioni concrete. Dopo l'approvazione del concept, si procede con il progetto esecutivo e la selezione di arredi e finiture. Per le aziende, il format si adatta al tipo di attività: negli uffici si punta su funzionalità ed ergonomia, nei negozi sull'esperienza d'acquisto e l'identità di marca, nei ristoranti sull'atmosfera e la convivialità, negli hotel sul comfort e l'eleganza.

Realizziamo modelli BIM (Building Information Modeling)

Il BIM (Building Information Modeling) per le Pubbliche Amministrazioni (PA) è un metodo per la gestione digitale delle informazioni di un'opera edilizia durante tutto il suo ciclo di vita. In pratica, consente di creare un modello digitale 3D dell'opera che contiene tutte le informazioni relative al progetto, dalla geometria ai materiali, dai costi ai tempi di realizzazione. Questo modello può essere utilizzato per migliorare la collaborazione tra i diversi attori coinvolti (progettisti, costruttori, gestori), riducendo errori e incomprensioni. Inoltre, il BIM permette di ottimizzare tempi e costi di progettazione, costruzione e gestione dell'opera, individuare e risolvere eventuali problemi in fase di progettazione e creare opere di maggiore qualità, più sostenibili e con minori costi di gestione. Infine, aumenta la trasparenza del processo di costruzione e gestione delle opere pubbliche. Dal primo gennaio 2025 il BIM è obbligatorio per tutte le P.A..  Contattaci per una offerta personalizzata.

Servizio termografia Edile

La termografia edile è una tecnica non distruttiva che sfrutta una termocamera per misurare le temperature superficiali di un edificio e individuare così vizi e difetti nascosti. Ad esempio, permette di identificare i ponti termici, ovvero la zona dell'involucro edilizio dove il calore si disperde a causa di errori di progettazione o costruzione, come la mancanza di isolamento. La termografia rileva anche le infiltrazioni d'aria, cioè spifferi e fessure che compromettono il comfort e aumentano i consumi energetici. Queste possono derivare da serramenti non a tenuta o crepe nei muri. Un altro problema che la termografia può evidenziare è l'umidità di risalita dalle fondamenta, causa di danni alle murature e muffa. Infine, è utile per individuare perdite negli impianti idraulici o di riscaldamento, evitando demolizioni inutili. Contattaci per verificare le tue esigenze.

Servizio Diagnosi Energetica

La diagnosi energetica è un'analisi dettagliata del consumo energetico di un edificio o di un'unità immobiliare, finalizzata a identificarne le inefficienze ed a proporre interventi di miglioramento. Si tratta di un processo fondamentale per ridurre gli sprechi, ottimizzare i costi e contribuire alla tutela ambientale.

In linea generale, la diagnosi energetica prevede un'analisi approfondita dell'involucro edilizio (pareti, finestre, tetto), degli impianti di climatizzazione (riscaldamento e raffrescamento), degli impianti per la produzione di acqua calda sanitaria e degli impianti di illuminazione. Vengono valutati i consumi energetici, le emissioni di CO2 e le dispersioni termiche, al fine di individuare le criticità e proporre soluzioni mirate.

Attraverso la diagnosi energetica è possibile individuare interventi di riqualificazione energetica, come l'isolamento termico, la sostituzione degli infissi, l'installazione di impianti a fonti rinnovabili e l'adozione di sistemi di gestione intelligente dell'energia. Questi interventi consentono di migliorare il comfort abitativo, ridurre i costi delle bollette e aumentare il valore dell'immobile.

Per le P.A. le diagnosi sono obbligatorie in molti casi. Le nostre diagnosi sono realizzate da EGE certificato in conformità alla norma.

Il Conto Termico finanzia le diagnosi energetiche , incentivando la riqualificazione degli edifici.

black blue and yellow textile

Servizio Termoflussimetria Edile

La termoflussimetria è una tecnica di misurazione che determina il flusso di calore attraverso gli elementi edilizi (pareti, tetti, ecc. ) per valutarne l'isolamento termico. Una sonda applicata alla superficie misura la temperatura e il flusso di calore, permettendo di calcolare la trasmissione termica (U). Questa tecnica, normata principalmente dalla UNI EN ISO 9869-1, è fondamentale per verificare le prestazioni energetiche degli edifici in conformità con le normative nazionali (ad esempio, il D. Lgs. 192/2005 e successive modifiche). Inoltre, permette di individuare ponti termici e dispersioni di calore e di valutare l'efficacia degli interventi di isolamento. La termoflussimetria, descritta anche nella UNI EN 12667, offre una misurazione in opera, non distruttiva, rapida e precisa, utile per diagnosi energetiche e interventi di riqualificazione.

Redazione Legge 10/91

La Legge 10/91 e il D.Lgs. 192/2005 impongono requisiti di efficienza energetica negli edifici. La nostre Relazioni Tecniche Legge 10, sono redatte da un professionista abilitato, dimostrano il rispetto di tali requisiti per gli interventi, descrivendo le caratteristiche energetiche dell'edificio (trasmissione, impianti, ecc. ). Sono obbligatorie per nuove costruzioni, ristrutturazioni importanti (oltre il 25% dell'involucro), nuovi impianti termici e per accedere a incentivi come l'Ecobonus. La mancata presentazione dell'elaborato comporta la perdita di agevolazioni.

Creamo Comunità Energetiche

Le comunità energetiche rinnovabili (CER) consentono a cittadini, aziende ed enti locali di unirsi per produrre e condividere energia pulita, proveniente da fonti come il sole o il vento. In pratica, installando impianti come pannelli solari, i membri della CER possono autoconsumare l'energia prodotta e condividere quella in eccesso con gli altri partecipanti, riducendo così i costi in bolletta e l'impatto ambientale.

Questo modello innovativo, promosso dall'Unione Europea e recepito dalla normativa italiana, favorisce la transizione energetica e porta vantaggi a livello locale, come la riduzione delle emissioni di CO2 e la creazione di nuove opportunità economiche.

Contattaci per creare insieme la tua CER.

Redazione Elaborati DNSH

Hai un progetto e vuoi accedere ai fondi del PNRR? Ti aiutiamo a verificare e dimostrare che il tuo progetto rispetta l'ambiente, come previsto dal principio DNSH. Analizziamo il tuo progetto e ti supportiamo nella preparazione della documentazione necessaria, in modo semplice e chiaro. Con la nostra esperienza, potrai ottenere i finanziamenti e contribuire alla transizione ecologica. Contattaci per saperne di più.

Redazione Pratiche Conto Termico

Hai rinnovato casa o azienda con interventi di efficienza energetica come previsto dal Decreto Ministeriale 16 febbraio 2016 e successive modifiche (Conto Termico 2. 0)? Sai che potresti ottenere rimborsi fino al 65% delle spese sostenute? Affidati a noi per non perdere questa occasione! Redigiamo la tua pratica completa e accurata, massimizzando gli incentivi previsti dalla normativa vigente e gestendo tutto l'iter burocratico con il GSE. Contattaci per una consulenza gratuita e scopri come ottenere il massimo dal Conto Termico.

Certificati Bianchi

I Certificati Bianchi, noti anche come Titoli di Efficienza Energetica (TEE), sono un incentivo per chi realizza interventi di risparmio energetico. In pratica, se si eseguono lavori che riducono il consumo di energia, come ad esempio installare un isolamento termico, sostituire la caldaia con una ad alta efficienza o passare all'illuminazione a LED, noi certifichiamo il risparmio energetico ottenuto e ti vengono assegnati dei Certificati Bianchi. Ogni certificato equivale a una tonnellata equivalente di petrolio (TEP) risparmiata. Puoi quindi vendere questi certificati sul mercato a distributori di energia obbligati ad acquistarli, ottenendo così un guadagno economico